这5款农村自建别墅风格,你心动了吗?
1
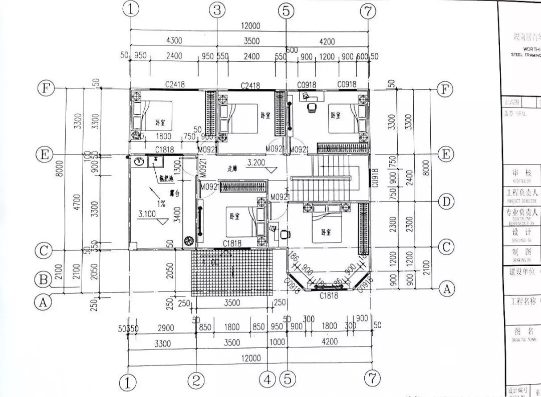
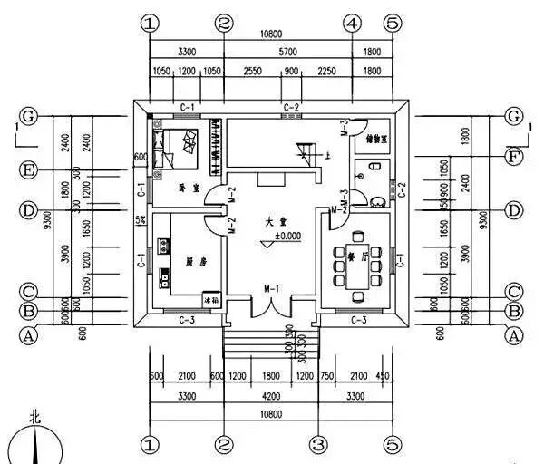
户型1:10.8m*9.3m


户型为2层独栋别墅,轻钢结构,建筑占地面积100.4平方米,建筑总高度8.69米。
一层设有大堂、厨房、餐厅、储物室、卧室、卫生间;二层设有起居室、主卧室、卧室、书房、储物室、卫生间。
本户型采用坡屋顶,火砖色沥青瓦+粉红色文化砖,色彩清新淡雅,功能分区明确;房间尺度设计适宜,空间利用率高,明厨明卫,各使用空间都有较好的采光。
2
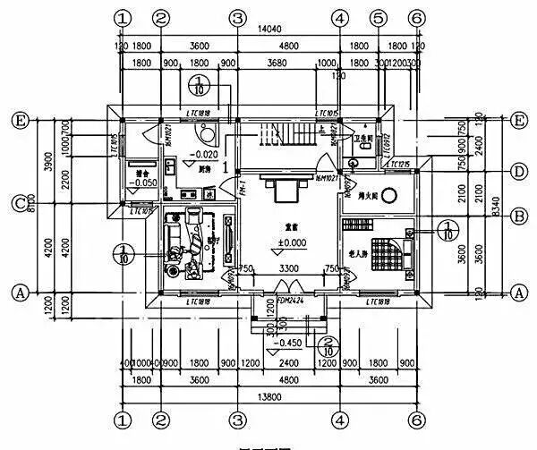
户型2:13.8m*8.34m


户型为单家独院式,用地面积134.5平方米,占地面积109.46平方米,建筑面积298.36平方米,建筑总高度11.835米。
一层设有客厅、餐厅、厨房、客房、老人房、取暖室、卫生间;二层设有客厅、主卧、次卧、客房、儿童房、卫生间、一个大露台;三层设有客厅、卧室3间、卫生间1间、两个大露台;
本户型采用坡屋顶,轻钢龙骨+3D喷筑结构,外观造型简洁大方,色彩明快,房间尺度设计适宜,空间利用率高,造价适中,并富有新农村时代气息。
3
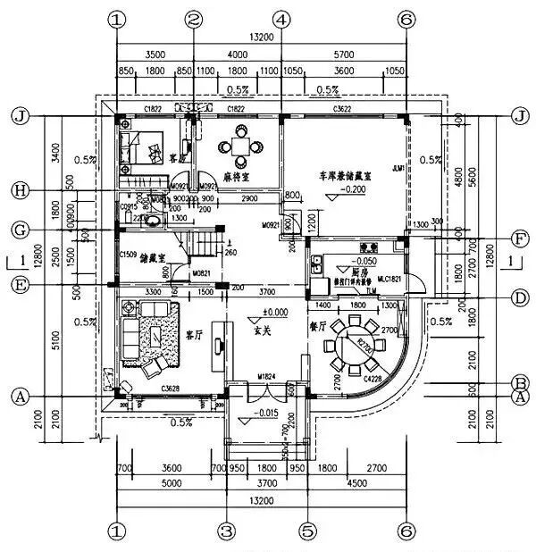
户型3:13.2m*12.8m


本户型为三层独栋别墅,总建筑面积412.72平米,占地面积170.38平米,建筑总高度10.65米。
第一层设有客厅、入口玄关、厨房、餐厅、储藏室、卫生间、客房、麻将室、车库兼储藏室;二层设有客房带卫生间2套、娱乐室、起居室、卧室、1个独立卫生间、1个大阳台;三层设有更衣室、空中花园、卫生间1间、书房、洗浴室。
本户型外观造型高低错落,别致大方,采光通风良好。
4
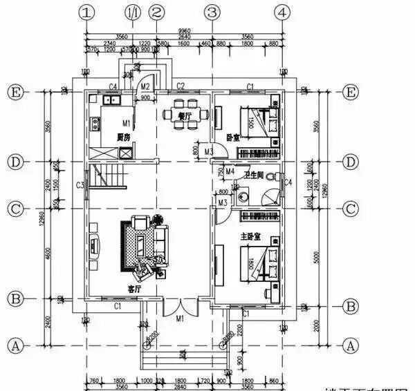
户型4:9.96m*12.96m


本户型为三层独栋别墅,占地面积129平方米,建筑高度10.65米。
一层设有客厅、餐厅、厨房、主卧室、卧室、卫生间;二层设有客厅、主卧室、卧室2间、卫生间2间;三层设有主卧室、卧室2间、卫生间2间、一个大露台。
本户型外观造型简洁大方,色彩明快,功能分区合理,房间尺度设计适宜,采光通风良好,富有时代气息。
5
户型5:12m*10.1m


此户型占地面积112.8平方米,建筑面积203.5平方米。
一楼设有客厅、储藏室、杂物间、卧室、卫生间、厨房;二楼设有过厅、主卧室、卧室、卫生间、露台。
本户型外墙采用灰白色和白色水泥植物纤维挂板,外观造型简洁大方,色彩清新淡雅,房间尺度设计适宜,空间利用率高,明厨明卫,各使用空间都有较好的采光通风,适宜建造于平坦地带。
6
户型6:12m*10.1m




这款户型最大的特色就是它的土豪气息十足,不说它外观阳台露台繁多,造型错落起伏,只看它室内的旋转楼梯和大大的半圆状挑空客厅,一股浓郁的富贵气就扑面而来!再加上它色彩明快的天蓝色波形琉璃瓦,矗立的罗马柱,阔气的落地窗户,一眼看上去,就不是寻常百姓家啊!
立面配色上,不仅可以采用简洁的腻子涂料,也可以配上色彩更加鲜亮的文化石或装饰板材,一眼看去大气十足!
整个房子占地182平米,建筑高度11.1米,总建筑面积366.4平米,共设有7个卧室,宅基地利用率相当高,即使你家里有10来个人,都能轻松入住而毫不显拥挤!
End

