建这样的别墅,才是对钱包最起码的尊重,6款三层别墅被全国人抢着建
占地尺寸:11.7米x10.2米
占地面积:120.26平方
建筑面积:311.43平米




占地尺寸:开间13.48米 进深10.48米
占地面积:137平方米
建筑面积:452 平方米,



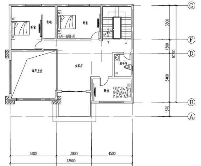
占地尺寸:开间:13.5米,进深:12.27米
占地面积:144.32㎡
建筑面积:405.21㎡



开间:12.24米
进深:10.24米




开间:10.64米
进深:9.94米




开间:12.24米
进深:12.9米




占地尺寸:11.7米x10.2米
占地面积:120.26平方
建筑面积:311.43平米




占地尺寸:开间13.48米 进深10.48米
占地面积:137平方米
建筑面积:452 平方米,



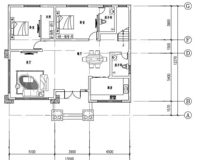
占地尺寸:开间:13.5米,进深:12.27米
占地面积:144.32㎡
建筑面积:405.21㎡



开间:12.24米
进深:10.24米




开间:10.64米
进深:9.94米




开间:12.24米
进深:12.9米



