5套二层别墅图纸,男女老少都爱倍长脸,第三套当之无愧年度爆款
二层别墅司空见惯,说推荐相信在座的各位比我手里有的图纸都多,说户型每家每户生活习惯都不同,我只能做的就是把一些相对少见但设计上没硬伤造价上亲民的基础款大众款整理出来,供大家参考,今天整理的这五款都是二层别墅,外形设计很用心美观但都相对易做,不让你们为了找能做施工队头疼,户型大众,基础设施完善合理,基本的风水也遵循,一起来跟我看看图纸吧!
第一款

极具欧式风格的二层小别墅,精致美观的外表,配色材质和谐靓丽,房檐设计的很有特色,辨识度很高,台阶式门厅的设计让进门就具有仪式感,虽然没有农村大热的落地窗但小窗户也别有一番温馨滋味!开间:14.4米,进深:12.6米,占地面积:180.6平方米,建筑面积:368.8平方米,结构形式:装配式轻钢结构。


占地面积较大,但空间利用率却极高,设计的合理而完善,7室1书房的设计比起三层别墅都不多让,人丁兴旺的大家族也能居住。
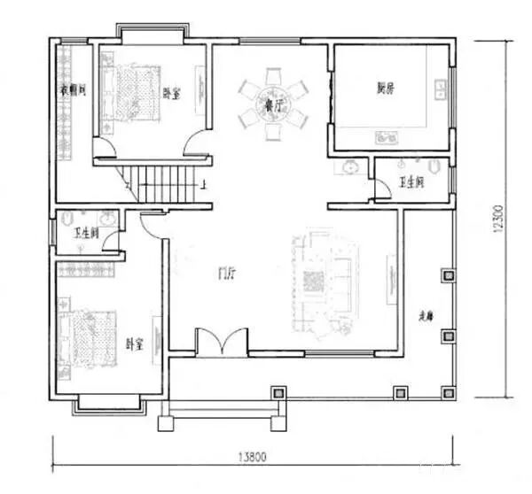
第二款

层次感很强,老虎窗很抢镜,阳台的设计也很有意思,辨识度精致感都完成的很好,门廊更多了家的温馨。开间:13.8米,进深:12.3米,占地面积:176.06平方米,建筑面积:362.03平方米,结构形式:装配式轻钢结构。


客厅的设计很大气,入户就能感觉到大户人家的风范,主卧配套齐全豪气方便主人家生活学习,多个露台阳台的设计精致实用性也很强。
第三款

年度爆款毋庸置疑,设计得别出心裁,艺术感高级感透过效果图都能感觉到,配色优雅高贵,装饰烟囱的设计多了灵动之感,开间:12.1米,进深:13.9米,占地面积:151.09平方米,建筑面积:300.11平方米,结构形式:装配式轻钢结构。


室内布局完善合理,基础设施完备,大露台的设计美观实用。
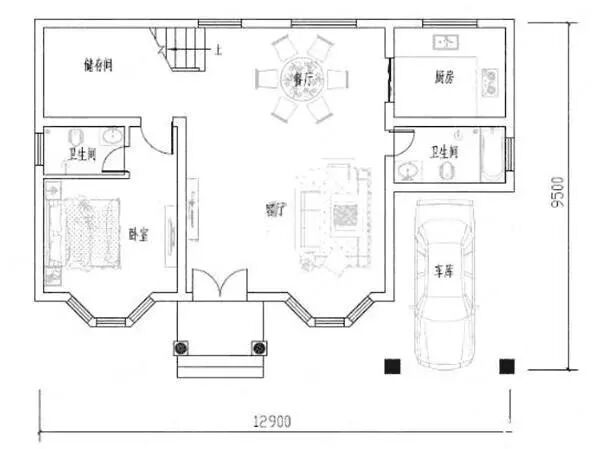
第四款

浪漫气质的感觉,双多边形采光窗的设计很吸睛和双老虎窗互相呼应,生动有趣。开间:12.9米,进深:9.5米,占地面积:94.32平方米,建筑面积:204.17平方米,结构形式:装配式轻钢结构。


第五款

洋气时尚的外形搭配精致的外立面,城里别墅也不过如此吧!开间:11.34米,进深:13.31米,占地面积:136.40平方米,建筑面积:254.44平方米,结构形式:装配式轻钢结构。


五款外形各异但同样美观大气的二层别墅,你喜欢哪一款呢?
版权说明:部分图片素材来源网络,无法核实源出处,版权归原作者所有,如涉及作品内容、版权和其他问题,请与本网联系,我们将在第一时间删除内容。

