530㎡现代别墅,彰显出一种自然舒适的大气感

在这套500多平的大别墅中,整体空间以现代简约的,在洁净的空间内加入大量的胡桃木元素,从地板、家具再到天花,布置出一种端庄自然的氛围,置身其中可以感受到优雅与稳重的体验。
客厅
▲客厅在现代简洁的空间基础,沙发对着的那边并不是传统的电视墙,而是一面大尺寸的落地玻璃窗,室外的园林树木进入空间,彰显出一种自然舒适的大气感。
▲简约舒适的空间,挑高的客厅在吊顶造型上也是加入了木色的元素设计,与木色地板、茶几等家具相呼应,再结合自然的园林窗景,让空间充满自然舒适的现代感。
▲沙发墙在素净的空间基础,加入屏风装饰,实木沙发+布艺坐垫的结合,也让空间充满自然舒适的简约气质。
▲胡桃木材质的茶几与家具,在现代大方的布置下,彰显出一种端庄高级的优雅与华丽。
▲茶几上精致的摆饰品,还有角落位置的骏马摆设,飘窗上的小茶台,也让空间显得更加高级而档次。
餐厅
▲餐厅背景墙上挂一幅褐色的的抽象派装饰画,布置实木圆餐桌,实木架+皮艺坐垫靠背的餐椅,带来一个端庄优雅的用餐空间感。
▲大大的圆餐桌,中间还有一个转盘,人多用餐的时候,夹菜更加方便。
楼梯
▲楼梯延续了客餐厅的木质感,木地板与家具保持统一的胡桃木的木色,让空间更加和谐高档。
▲在窗户与扶手上,引入玻璃的材质,也使得空间更加通透而现代时尚。
天井
▲空间内与天井之间,加入屏风门的设计,也让空间更加有东方雅韵的气质。
▲天井种上树枝,把生机感引入到室内空间,让生活更加悠闲自然。
卧室
▲卧室空间淡雅自然的氛围,床头墙左侧加入了一个小窗,右侧是一幅红底+黑白禅意图案的装饰画面,布置上自然温雅的软质皮艺床、素雅的床单,侧边休闲沙发椅与小茶几,也让空间充满自然轻松的惬意感。

▲小茶几上的花瓶插上干花,在小窗户的自然光线烘托下,也带来了更加情趣优雅的气息。
▲实木托架+银色灯罩的台灯,布置在床头柜上,也显得更加端庄时尚。
过道
▲从楼梯进去顶层后,一旁的过道,墙面上一个六边窗,结合天窗的采光,显得更加明亮而儒雅端庄。
书房与茶室
▲书房茶室是同一个空间,划分为2个区域:一边是布置大长桌的茶台与书架,成为阅读工作的空间;另一边隔着屏风门,抬高垫上坐垫,成为品茶聊天的好空间。
▲在抬高的地台上,无论是喝茶聊天,还是游戏娱乐,都是非常有趣的事。
次卧
▲次卧同样也是床头墙左侧加入了一个小窗,床头墙以硬包为背景,布置上实木床、床头柜与床尾凳,旁边布置一张布艺的单人休闲沙发,睡觉或放松,这都是一个不错的空间。
次卧②
▲次卧②在极简的空间基础,布置的实木床、床头有布艺靠背的设计,整体舒适也简约而惬意。
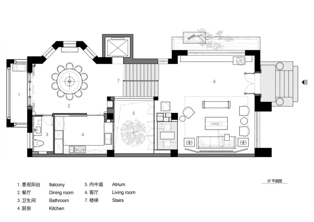
平面布置图


上一篇:地板巧拼花,实用与美观相结合
下一篇:木地板+大白墙,简单又不失品味!