13种铝合金门窗下料尺寸计算公式,收藏要快~
一、铝合金推拉窗的设计要求
设计铝合金推拉窗时,应考虑推拉窗的安装和使用安全。当窗的高度方向搭接量太大时,则给安装带来困难;若搭接量太小时,又存在使用安全问题,窗扇容易从窗框中脱出。因此,应正确选择搭接量。
高度方向搭接量的确定:应根据上滑型材的槽深和下滑型材的道轨高度,以及窗扇滑轮的高度来选择搭接量。窗扇与上滑的搭接量一般为上滑槽深的1/2减去2~3mm,可选用10 mm。窗扇与下滑的搭接量是滑轮的槽深到窗扇下边的距离,一般为6~10 mm,可选用8 mm。
另外,也可以用推拉框高度方向的内口尺寸,加上上滑槽深,再减去4~6 mm,作为推拉扇的高度尺寸。
宽度方向的搭接量应根据边封型材、勾企型材以及光企型材确定。设计时,应使两个窗扇的勾企完全重合。
铝合金推拉窗分为两扇推拉窗、三扇三等分推拉窗、三扇四等分推拉窗、四扇推拉窗等。设计时,应使窗扇的宽度尺寸和高度尺寸在国家标准允许的范围内。
设计带有固定窗的推拉窗时,如果是上下分格,固定窗与推拉窗之间可以采用中上滑型材或中下滑型材;如果是左右分格,固定窗与推拉窗之间可以采用固定边封型材。如果是高层建筑,还要考虑推拉窗的厚度系列是否满足抗风压强度要求。
设计纱扇时,高度方向的搭接量按纱轨槽深的二分之一选取。宽度方向的搭接量可按纱扇宽度不超过窗扇宽度选取,宽度尺寸不应超过窗扇宽度。
二、铝合金推拉窗的下料尺寸计算
铝合金推拉窗的下料尺寸主要是窗框和窗扇的下料尺寸计算。
窗框的下料尺寸包括:边封、上滑、下滑、中上滑、中下滑、固上横、中立柱(中梃)等。边封的下料尺寸等于窗高;上滑、下滑、中上滑、中下滑、固上横的下料尺寸等于窗宽减去两个边封的宽度再加上两个边封的槽深;
窗扇的下料尺寸包括:上方、下方、勾企、光企等。勾企、光企的下料尺寸等于窗框的内口尺寸,再加上两个搭接量(上下搭接量);上方、下方的下料尺寸等于窗扇的宽度减去勾企、光企的宽度,再加上勾企、光企的槽深;
计算窗扇的宽度尺寸时,有四种情况:一是两扇推拉窗的计算;二是三扇三等分推拉窗的计算、三是三扇四等分推拉窗的计算、四是四扇推拉窗的计算。计算时应分别对待。下面举例说明:
例题1 计算双扇铝合金推拉窗TLC1515的下料尺寸
解:1、根据推拉窗的洞口尺寸1500*1500,确定预留洞口间隙,假设为10mm/每边,确定推拉窗的成品尺寸为1480*1480;
2、根据推拉窗的成品尺寸,设计窗型,将窗型设计为两扇推拉窗。
3、根据推拉窗的成品尺寸,按比例绘制推拉窗的窗型立面图,并标注尺寸;(见下图)

4、设窗宽为W(1480),窗高为H(1480);
5、选用推拉70系列型材,边封宽度尺寸为25mm,槽深为15mm,上滑高度为40mm,槽深为25mm,下滑轨道高度为32mm,光企宽度尺寸为50mm。槽深为33mm,勾企宽度尺寸为45mm。槽深为43.8mm,上方宽度尺寸为45mm,下方宽度尺寸为64.5mm,玻璃槽深为12mm
6、计算下料尺寸:
窗框型材的下料尺寸:
边封= H =1480 (2件)
上滑=下滑=W-边封宽度*2+边封槽深*2=1480-25*2+15*2=1460 (各2件)
窗扇宽度=W/2-边封宽度+边封槽深+勾企宽度/2=1480/2-25+15+45/2=752.5
光企=勾企 =H-上滑高度-下滑轨道高度+上滑槽深-间隙
=1480-40-32+25-5=1428 (各2件)
上方=下方=窗扇宽度-光企宽度-勾企宽度+光企槽深+勾企槽深
=752.5-50-45+33+43.8=734.3 (各2件)
窗扇玻璃下料尺寸:
根据国家标准规定,玻璃与型材的搭接边应≥8mm,玻璃与型材间隙应≥4mm, 玻璃宽度=窗扇宽-光企宽度-勾企宽度+玻璃槽深*2-玻璃与型材间隙*2
=752.5-50-45+12*2-4*2=673.5
玻璃高度=光企-上方高度-下方高度+玻璃槽深*2-玻璃与型材间隙*2
=1428-45-64.5+12*2-4*2=1334.5
窗扇玻璃尺寸:1334.5 * 673.5 (2块)
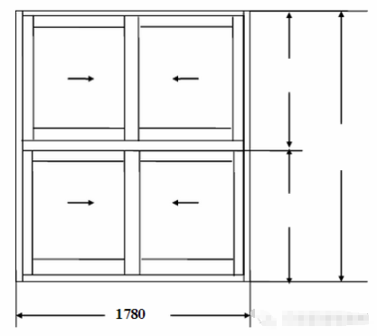
例题2 计算双扇铝合金推拉窗TLC1518的下料尺寸
解:1、根据推拉窗的洞口尺寸1500*1800,确定预留洞口间隙,假设为10mm/每边,确定推拉窗的成品尺寸为1480*1780;
2、根据推拉窗的成品尺寸,将窗型设计为带固定窗的两扇推拉窗。
3、根据推拉窗的成品尺寸,按比例绘制推拉窗的窗型立面图,并标注尺寸;(见下图)

4、设窗宽为W(1480),窗高为H(1780);固定窗高为H1(580) ; 推拉窗高为H2(1200)
5、选用推拉70系列型材,边封宽度尺寸为25mm,槽深为15mm,固上横高度为25mm,玻璃挡板高度为16mm,固上滑高度为45mm,槽深为26mm,下滑大面尺寸为55mm,内轨道高度为35mm,外轨道高度为25mm,中立柱宽度尺寸为20mm, 玻璃挡板高度为16mm,边封卡板厚度尺寸为1.2mm,光企宽度尺寸为50mm,槽深为33mm,勾企宽度尺寸为45mm。槽深为43.8mm,上方宽度尺寸为45mm,小下方宽度尺寸为65mm,大下方宽度尺寸为73mm,玻璃槽深为12mm,
6、计算下料尺寸:
边封= H =1780 (2件)
固上横=固上滑=下滑=W-边封宽度*2+边封槽深*2=1480-25*2+15*2=1460 (各2件)
中立柱= H1-固上横高度=580-25=555 (1件)
边封卡板= H1-固上横高度=580-25=555 (2件)
窗扇宽度=W/2-边封宽度+边封槽深+勾企宽度/2=1480/2-25+15+45/2=752.5
内光企=内勾企 =H2-固上滑高度-下滑内轨道高度+ 上滑槽深-间隙
=1200-45-35+25-5=1140 (各1件)
外光企=外勾企 =H2-固上滑高度-下滑外轨道高度+上滑槽深-间隙
=1200-45-25+25-5=1150 (各1件)
上方=下方=窗扇宽度-光企宽度-勾企宽度+光企槽深+勾企槽深
=752.5-50-45+33+43.8=734.3 (各2件)
窗扇玻璃下料尺寸:
根据国家标准规定,玻璃与型材的搭接边应≥8mm,玻璃与型材间隙应≥4mm, 窗扇玻璃宽度=窗扇宽-光企宽度-勾企宽度+玻璃槽深*2-玻璃与型材间隙*2
=752.5-50-45+12*2-4*2=673.5
内窗扇玻璃高度=内光企-上方高度-小下方高度+玻璃槽深*2-玻璃与型材间隙*2
=1140-45-65+12*2-4*2=1046
外窗扇玻璃高度=外光企-上方高度-大下方高度+玻璃槽深*2-玻璃与型材间隙*2 =1150-45-73+12*2-4*2=1048
内窗扇玻璃尺寸=外窗扇玻璃尺寸:673.5 * 1047 (1块)
固定窗玻璃扣条下料尺寸:
横玻璃扣条=W/2-边封宽度-边封卡板厚度-中立柱宽度/2
=1480/2-25-1.2-20/2=703.8 (4件)
竖玻璃扣条=H1-固上横高度=580-25=555 (4件)
固定窗玻璃下料尺寸:693 * 545 (2块)
例题3 计算双扇铝合金推拉窗TLC1518的下料尺寸
解:1、根据推拉窗的洞口尺寸1500*1800,确定推拉窗的成品尺寸为1480*1780;2、根据推拉窗的成品尺寸,设计窗型,将窗型设计为下边带固定窗的两扇推拉窗。3、根据推拉窗的成品尺寸,按比例绘制推拉窗的窗型立面图,并标注尺寸;(见下图)

4、设窗宽为W(1480),窗高为H(1780);固定窗高为H1(580) ; 推拉窗高为H2(1200)
5、选用70系列型材,边封宽度为25mm,槽深为15mm, 上滑高度为40mm,槽深为25mm,固上横高度为25mm,固下滑内轨道高度为36mm,外轨道高度为25mm,中立柱宽度尺寸为20mm,边封卡板厚度为1.2mm,光企宽度尺寸为50mm,槽深为33mm,勾企宽度尺寸为45mm。槽深为43.8mm,上方宽度尺寸为45mm,小下方宽度尺寸为65mm,大下方宽度尺寸为73mm,玻璃槽深为12mm,
6、计算下料尺寸:
边封= H =1780 (2件)
固上横=固下滑=上滑=W-边封宽度*2+边封槽深*2=1480-25*2+15*2=1460 (各1件)
中立柱= H1-固上横高度=580-25=555 (1件)
边封卡板= H1-固上横高度=580-25=555 (2件)
内光企=内勾企 =H2-上滑高度-固下滑内轨道高度+上滑槽深-间隙=1200-40-36+25-5=1144
外光企=外勾企 =H2-上滑高度-固下滑外轨道高度+上滑槽深-间隙=1200-40-25+25-5=1155
窗扇宽度=W/2-边封宽度+边封槽深+勾企宽度/2=1480/2-25+15+45/2=752.5
上方=下方=窗扇宽度-光企宽度-勾企宽度+光企槽深+勾企槽深=752.5-50-45+33+43.8=734.3
窗扇玻璃下料尺寸:
窗扇玻璃宽度=窗扇宽-光企宽度-勾企宽度+玻璃槽深*2-玻璃与型材间隙*2
=752.5-50-45+12*2-4*2=673.5
内窗扇玻璃高度=内光企-上方高度-小下方高度+玻璃槽深*2-玻璃与型材间隙*2 =1144-45-65+12*2-4*2=1050
外窗扇玻璃高度=外光企-上方高度-小下方高度+玻璃槽深*2-玻璃与型材间隙*2 =1155-45-73+12*2-4*2=1053
内窗扇玻璃尺寸=外窗扇玻璃尺寸:673.5 *1051.5 (2块)
固定窗玻璃扣条下料尺寸:
横玻璃扣条=W/2-边封宽度-边封卡板厚度-中立柱宽度/2=1480/2-25-1.2-20/2=703.8
竖玻璃扣条=H1-固上横高度=580-25=555 (4件)
固定窗玻璃下料尺寸:693* 545 (2块)
例题4 计算三扇四等分推拉窗TLC2415的下料尺寸
解:1、根据推拉窗的洞口尺寸2100*1500,确定预留洞口间隙,假设为10mm/每边,确定推拉窗的成品尺寸为2380*1480;
2、根据推拉窗的成品尺寸,将窗型设计为三扇四等分推拉窗,中间为固定扇,约占窗宽的四分之二,两边为活动扇,约各占窗宽的四分之一。设计要求是既能使窗扇完全打开,又能使窗竖扇关闭时竖扇完全重合。
3、根据推拉窗的成品尺寸,按比例绘制推拉窗的窗型立面图,并标注尺寸;(见下图)

4、设窗宽为W(2380),窗高为H(1480);
5、选用推拉70系列型材,边封宽度尺寸为25mm,槽深为15mm,上滑高度为40mm,槽深为25mm,下滑轨道高度为32mm,光企宽度尺寸为50mm,槽深为33mm,勾企宽度尺寸为45mm。槽深为43.8mm,上方宽度尺寸为45mm,下方宽度尺寸为64.5mm,玻璃槽深为12mm,
6、计算下料尺寸:
边封= H =1480 (2件)
上滑=下滑=W-边封宽度*2+边封槽深*2=2380-25*2+15*2=2360 (各2件) 光企=勾企H-上滑高度-下滑轨道高度+上滑槽深-间隙=1480-40-32+25-5=1428 (2+4件)
活动窗扇宽度=上滑/4+勾企宽度/2=2360/4+45/2=612.5
固定窗扇宽度=上滑/2+勾企宽度=2360/2+45=1225
因为活动扇还要安装半圆锁, 若考虑锁厚24 mm,则活动扇应缩小12mm, ,固定扇要加大24 mm,
即: 活动窗扇=612.5-12=600.5
固定窗扇=1225+24=1249
活动窗扇上方=下方=活动窗扇宽度-光企宽度-勾企宽度+光企槽深+勾企槽深
=600.5-50-45+33+43.8=582.3 (各4件)
固定窗扇上方=下方=固定窗扇宽度-勾企宽度*2 +勾企槽深*2=1249-45*2+43.8*2=1246.6
窗扇玻璃下料尺寸:
活动窗扇玻璃宽度=活动窗扇宽-光企宽度-勾企宽度+玻璃槽深*2-玻璃与型材间隙*2
=600.5-50-45+12*2-4*2=521.5
活动窗扇玻璃高度=光企-上方高度-下方高度+玻璃槽深*2-玻璃与型材间隙*2
=1428-45-64.5+12*2-4*2=1334.5
活动窗扇玻璃尺寸:521.5 *1334.5 (2块)
固定窗扇玻璃宽度=固定窗扇宽-勾企宽度*2+玻璃槽深*2-玻璃与型材间隙*2
=1249-45*2+12*2-4*2=1175
固定窗扇玻璃高度=活动窗扇玻璃高度=1334.5
固定窗扇玻璃尺寸:1175 * 1334.5 (1块)
例题5 计算三扇三等分推拉窗TLC2115的下料尺寸
解:1、根据推拉窗的洞口尺寸2100*1500,确定预留洞口间隙,假设为10mm/每边,确定推拉窗的成品尺寸为2080*1480;
2、根据推拉窗的成品尺寸,将窗型设计为三扇三等分推拉窗,中间为固定扇,约占窗宽的三分之一,两边为活动扇,约各占窗宽的三分之一。设计要求是既能使窗扇完全打开,又能使窗竖扇完全重合。
3、根据推拉窗的成品尺寸,按比例绘制推拉窗的窗型立面图,并标注尺寸;(见下图)

4、设窗宽为W(2080),窗高为H(1480);
5、选用推拉70系列型材,边封宽度尺寸为25mm,槽深为15mm,上滑高度为40mm,槽深为25mm,下滑大面尺寸为44mm,轨道高度为32mm,光企宽度尺寸为50mm,槽深为33mm,勾企宽度尺寸为45mm。槽深为43.8mm,上方宽度尺寸为45mm,玻璃槽深为12mm,下方宽度尺寸为64.5mm,玻璃槽深为12mm,
6、计算下料尺寸:
边封= H =1480 (2件)
上滑=下滑=W-边封宽度*2+边封槽深*2=2080-25*2+15*2=2060 (各2件)
光企=H-上滑高度-下滑轨道高度+上滑槽深-间隙 =1480-40-32+25-3=1428 (2件)
勾企=光企=1431 (4件)
活动窗扇宽度=上滑/3+勾企宽度/2=2060/3+45/2=709.166 固定窗扇宽度=上滑/3+勾企宽度=2060/3+45=731.666
此时,固定窗扇容纳活动窗扇的空间为: 固定窗扇宽度-勾企宽度=731.66-45=686.66,还差709.166-686.66=22.499, 因此活动窗扇不能完全打开,若使活动窗扇完全打开,应使活动窗扇缩小22.499/3=7.499,固定窗扇加大7.499*2=15mm,
即: 活动窗扇=709.166-7.499=701.666≈702
固定窗扇=731.666+15=746.666≈747
此时,固定窗扇容纳活动窗扇的空间为: 固定窗扇宽度-勾企宽度=746.666-45=701.666,能够容纳活动窗扇701.666.
因为活动窗扇还要安装半圆锁, 若考虑锁厚24 mm,则活动窗扇还要缩小24mm*2/3=16, ,固定窗扇还要加大24mm*4/3=96,
即: 活动窗扇=702-16=686
固定窗扇=747+32=779
验算:
固定窗扇容纳活动窗扇的空间为:779-45-24=710
活动窗扇+锁厚=686+24=710
活动窗扇上方=下方=活动窗扇宽度-光企宽度-勾企宽度+光企槽深+勾企槽深
=687-50-45+33+43.8=668.8 (各4件)
固定窗扇上方=下方=固定窗扇宽度-勾企宽度*2 +勾企槽深*2
=776-45*2+43.8*2=773.6 (各2件)
窗扇玻璃下料尺寸:
根据国家标准规定,玻璃与型材的搭接边应≥8mm,玻璃与型材间隙应≥4mm, 活动窗扇玻璃宽度=活动窗扇宽-光企宽度-勾企宽度+玻璃槽深*2-玻璃与型材间隙*2 =687-50-45+12*2-4*2=608
活动窗扇玻璃高度=光企-上方高度-下方高度+玻璃槽深*2-玻璃与型材间隙*2
=1428-45-64.5+12*2-4*2=1334.5
活动窗扇玻璃尺寸:608* 1334.5 (2块)
固定窗扇玻璃宽度=固定窗扇宽-勾企宽度*2+玻璃槽深*2-玻璃与型材间隙*2 =776-45*2+12*2-4*2=702
固定窗扇玻璃高度=活动窗扇玻璃高度==1334.5
固定窗扇玻璃尺寸:702 * 1334.5 (1块)
例题6 计算四扇推拉窗TLC 3015的下料尺寸
解:1、根据推拉窗的洞口尺寸3000*1500,确定预留洞口间隙,假设为10mm/每边,确定推拉窗的成品尺寸为2980*1480;
2、根据推拉窗的成品尺寸,设计窗型,将窗型设计为四扇推拉窗,中间两扇在同一轨道,往两边打开,两扇之间安装收口,起密封作用。四扇的宽度尺寸相等。两边的窗扇在同一轨道,可以往中间打开。设计要求是窗竖扇关闭时完全重合。
3、根据推拉窗的成品尺寸,按比例绘制推拉窗的窗型立面图,并标注尺寸;(见下图)

4、设窗宽为W(2980),窗高为H(1480);
5、选用推拉70系列型材,边封宽度尺寸为25mm,槽深为15mm,上滑高度为40mm,槽深为25mm,下滑大面尺寸为44mm,轨道高度为32mm,光企宽度尺寸为50mm,槽深为33mm,勾企宽度尺寸为45mm。槽深为43.8mm,上方宽度尺寸为45mm,玻璃槽深为12mm,下方宽度尺寸为64.5mm,玻璃槽深为12mm,收口壁厚1MM.
6、计算下料尺寸:
边封= H =1480 (2件)
上滑=下滑=W-边封宽度*2+边封槽深*2=2980-25*2+15*2=2960 (各2件) 光企=勾企=H-上滑高度-下滑轨道高度+ 上滑槽深-间隙
=1480-40-32+25-5=1428 (各4件)
窗扇宽度=(上滑-收口壁厚)/4+勾企宽度/2=(2960-1)/4+45/2=762.25
窗扇上方=下方=窗扇宽度-光企宽度-勾企宽度+光企槽深+勾企槽深
=762.25-50-45+33+43.8=744 (各4件)
收口=光企=1431 (1件)
窗扇玻璃下料尺寸:
根据国家标准规定,玻璃与型材的搭接边应≥8mm,玻璃与型材间隙应≥4mm, 窗扇玻璃宽度=窗扇宽度-光企宽度-勾企宽度+玻璃槽深*2-玻璃与型材间隙*2
=762.25-50-45+12*2-4*2=683.25
窗扇玻璃高度=光企-上方高度-下方高度+玻璃槽深*2-玻璃与型材间隙*2 =1428-45-64.5+12*2-4*2=1334.5
窗扇玻璃尺寸:683.25 * 1334.5 (2块)
例题7 计算四扇推拉窗TLC 3018的下料尺寸
解:1、根据推拉窗的洞口尺寸3000*1800,确定预留洞口间隙,假设为10mm/每边,确定推拉窗的成品尺寸为2980*1780;
2、根据推拉窗的成品尺寸,设计窗型,将窗型设计为四扇推拉窗,中间使用双边封,设计要求是四扇窗扇的宽度尺寸相等。
3、根据推拉窗的成品尺寸,按比例绘制推拉窗的窗型立面图,并标注尺寸;(见下图)

4、设窗宽为W(2980),窗高为H(1780);
5、选用推拉70系列型材,边封宽度尺寸为25mm,槽深为15mm, 双边封宽度尺寸为50mm,槽深为15mm,固上横高25,固上滑高度为45mm,槽深为26mm,下滑轨道高度为32mm,边封扣板厚度为1.2 mm,光企宽度尺寸为50mm,槽深为33mm,勾企宽度尺寸为45mm。槽深为43.8mm,上方宽度尺寸为45mm,下方宽度尺寸为64.5mm,玻璃槽深为12mm.
6、计算下料尺寸:
边封=双边封=H =1780 (2件)
固上横=固上滑=下滑=W/2-边封宽度-双边封宽度/2+边封槽深*2
=2980/2-25-50/2+15*2=1470 (各2件)
边封扣板= H1-固上横面高=580-25=555 (4件)
光企=勾企=H2-固上滑高度-下滑轨道高度+ 上滑槽深-间隙
=1200-45-32+26-5=1144 (各4件)
窗扇宽度=上滑/2+勾企宽度/2=1470/2+45/2=757.5
窗扇上方=下方=窗扇宽度-光企宽度-勾企宽度+光企槽深+勾企槽深
=757.5-50-45+33+43.8=739.3 (各4件)
窗扇玻璃下料尺寸:
根据国家标准规定,玻璃与型材的搭接边应≥8mm,玻璃与型材间隙应≥4mm,
窗扇玻璃宽度=窗扇宽度-光企宽度-勾企宽度+玻璃槽深*2-玻璃与型材间隙*2
=757.5-50-45+12*2-4*2=678.5
窗扇玻璃高度=光企-上方高度-下方高度+玻璃槽深*2-玻璃与型材间隙*2
=1144-45-64.5+12*2-4*2=1050.5
窗扇玻璃尺寸:678.5 * 1050.5 (4块)
例题8 计算四扇推拉窗TLC1824的下料尺寸
解:1、根据推拉窗的洞口尺寸1800*2400,确定预留洞口间隙,假设为10mm/每边,确定推拉窗的成品尺寸为1780*2380;
2、根据推拉窗的成品尺寸,设计窗型,将窗型设计为四扇推拉窗,上边两扇推拉窗,下边两扇推拉窗, 中间使用上下滑道.设计要求是四扇窗扇的宽度尺寸相等, 上下窗扇的高度尺寸相等。3、根据推拉窗的成品尺寸,按比例绘制推拉窗的窗型立面图,并标注尺寸;(见下图)

4、设窗宽为W(1780),窗高为H(2980);上边推拉窗高为H1, 下边推拉窗高为H2.
5、选用70系列型材,边封宽度为25mm,槽深为15mm,上滑高度为40mm,槽深为25mm,下滑外轨道高25mm,内轨道高35mm,上下滑道外轨道高54mm,内轨道高66mm, 槽深23 mm,光企宽度50mm,槽深为33mm,勾企宽度45mm。槽深43.8mm,上方宽度45mm,小下方宽度尺寸为65mm,大下方宽度尺寸为65mm,
6、计算下料尺寸:
边封=H =2380 (2件)
上滑=下滑=上下滑道=W-边封宽度*2+边封槽深*2=1780-25*2+15*2=1760 (各1件)
窗扇宽度=上滑/2+勾企宽度/2=1760/2+45/2=902.5
窗扇上方=下方=窗扇宽度-光企宽度-勾企宽度+光企槽深+勾企槽深=902.5-50-45+33+43.8=884.3
上内光企=H1-上滑高度-上下滑道内轨高度+上滑槽深-间隙=H1-40-66+25-5=H1-86
下内光企=H2-下滑内轨道高度+上下滑道槽深-间隙=H2-35+23-5=H2-17
确定H1、H2的尺寸时,应使上内光企与下内光企相等,以简化生产工艺,
即: H1-83=H2-17 (1)
已知: H1=H-H2 (2)
将(2)式代入(1)式,
得: H-H2-83=H2-17 (3)
由(3)式得: 2H2= H -83+17
H2=H/2-33 (4)
将H=2380代入(4)式
得: H2=2380/2-33=1157
将H2=1157代入(2)式
得: H1=H-H2=2380-1157=1223
验算:
H= H1+ H2=1223+1157=2380
上内光企=H1-83=1223-83=1140
下内光企=H2-17=1157-17=1140
上外光企=上内光企+(上下滑道内轨道高度-上下滑道外轨道高度)=1140+66-54=1152
下外光企=下内光企+(下滑内轨高度-下滑外轨高度)=1140+35-25=1150
取上外光企=下外光企=1151
例题9 计算铝合金推拉门LPM1821的下料尺寸
解:1. 根据推拉门的洞口尺寸1800*2100,确定推拉门的成品尺寸为1780*2080;
2、根据推拉门成品尺寸,设计为两扇推拉门;
3、按比例绘制推拉门的立面图,并标注尺寸;(见下图)

4.设门宽为W(1780),门总高为H(2080)。
5.选用96系列推拉门铝合金型材,边封宽度为28mm,槽深为16mm,上滑高度为50mm,槽深为36mm,下滑轨道高24.3mm,门光企宽度65mm,槽深为63mm,玻璃槽深16mm,门勾企宽度55mm。槽深53mm,玻璃槽深16mm,上方宽度52mm,玻璃槽深16mm,下方宽度尺寸为77mm,玻璃槽深16mm,
6、计算下料尺寸:
边封=H=2080 (2件)
上滑=下滑=W-边封宽度*2+边封槽深*2=1780-28*2+16*2=1756 (各1件)
门光企=门勾企=H-上滑高度-下滑轨道高度+上滑槽深-间隙
=2080-50-24.3+36-5=2036.7 (各2件)
门扇宽度=上滑/2+门勾企宽度/2=1756/2+55/2=905.5
门扇上方=门扇下方=门扇宽度-门光企宽度-门勾企宽度+光企槽深+勾企槽深
=905.5-65-55+63+53=901.5 (各2件)
窗扇玻璃下料尺寸:
根据国家标准规定,玻璃与型材的搭接边应≥8mm,玻璃与型材间隙应≥4mm, 门扇玻璃宽度=门扇宽度-门光企宽度-门勾企宽度+玻璃槽深*2-玻璃与型材间隙*2
=905.5-65-55+16*2-4*2=809.5
门扇玻璃高度=门光企-上方高度-下方高度+玻璃槽深*2-玻璃与型材间隙*2
=2036.7-52-77+16*2-4*2=1931.7
窗扇玻璃尺寸:809.5 * 1931.7 (2块)
例题10 计算铝合金推拉门LPM3021的下料尺寸
解:1. 根据推拉门的洞口尺寸3000*2100,确定推拉门的成品尺寸为2980*2080;
2、根据推拉门成品尺寸,设计为四扇推拉门;
3、按比例绘制推拉门的立面图,并标注尺寸;(见下图)

4.设门宽为W(2980),门总高为H(2080)。
5.选用96系列推拉门铝合金型材,边封宽度为28mm,槽深为16mm,上滑高度为50mm,槽深为36mm,下滑轨道高24.3mm,门光企宽度65mm,槽深为63mm,玻璃槽深16mm,门勾企宽度55mm。槽深53mm,玻璃槽深16mm,上方宽度52mm,玻璃槽深16mm,下方宽度尺寸为77mm,玻璃槽深16mm,收口壁厚1.5 16mm。
6、计算下料尺寸:
边封=H=2080 (2件)
上滑=下滑=W-边封宽度*2+边封槽深*2=2980-28*2+16*2=2956 (各1件)
门光企=门勾企=H-上滑高度-下滑轨道高度+上滑槽深-间隙
=2080-50-24.3+36-5=2036.7 (各4件)
门扇宽度=(上滑-收口壁厚)/4+门勾企宽度/2=(2956-1.5)/4+55/2=766.125
门扇上方=门扇下方=门扇宽度-门光企宽度-门勾企宽度+光企槽深+勾企槽深
=766.125-65-55+63+53=762.125 (各4件)
窗扇玻璃下料尺寸:
根据国家标准规定,玻璃与型材的搭接边应≥8mm,玻璃与型材间隙应≥4mm, 门扇玻璃宽度=门扇宽度-门光企宽度-门勾企宽度+玻璃槽深*2-玻璃与型材间隙*2
=766.125-65-55+16*2-4*2=670.125
门扇玻璃高度=门光企-上方高度-下方高度+玻璃槽深*2-玻璃与型材间隙*2
=2036.7-52-77+16*2-4*2=1931.7
窗扇玻璃尺寸:670.125* 1931.7 (4块)
例题11 计算铝合金地弹门LPM0925的下料尺寸
解:1. 根据地弹门的洞口尺寸900*2500,确定地弹门的成品尺寸为880*2480;
2、根据地弹门成品尺寸,按比例绘制地弹门的立面图,并标注尺寸;(见下图)

3.设门宽为W(880),门总高为H(2480),亮窗高为H1(480),门高为H2(2000)。
4.选用山东华建46地弹门系列型材,
门框宽度44mm,厚度76mm,
门中框宽度44mm,厚度76mm,
门光企宽度51.3mm,厚度46mm,槽深47 mm,
门勾企宽度51.6mm,厚度46mm,槽深47mm,
门上方高度53.9mm,厚度44mm,
门下方高度81.8mm,厚度44mm,
门中横高度80.6mm,厚度44mm,
门扇与门框的间隙为5mm。
5、计算下料尺寸:
竖门框=H=2480 (2件)
门上框=门中框=W-门框宽度*2=880-44*2=792 (各1件)
门光企=门勾企= H2-离地间隙-门扇与门框的间隙=2000-10-5=1985 (各1件)
门扇宽度=W-门框宽度*2-门扇与门框的间隙=880-44*2-5*2=782
门扇上方=门扇下方=门中横=门扇宽度-门光企宽+门光企槽深-门勾企宽+门勾企槽深 =782-51.3+47-51.6+47=773.1 (各1件)
门扇玻璃压条:
横玻璃压条=门扇宽度-门光企宽度-门勾企宽度=782-51.3-51.6=679.1 (4件)
竖玻璃压条=(门光企-门上方高度-门下方高度-门中横高度)/2
=(1985-53.9-81.8-80.6)/2=884.35 (4件)
玻璃尺寸:670*874
亮窗玻璃压条:
横玻璃压条= W-门框宽度*2=880-44*2=792 (4件)
竖玻璃压条= H1-门框宽度*2=480-44*2=392 (4件)
玻璃尺寸:782*382
例题12 计算铝合金地弹门LPM1825的下料尺寸
解:1. 根据地弹门的洞口尺寸1800*2500,确定地弹门的成品尺寸为1780*2480;
2、根据地弹门成品尺寸,按比例绘制地弹门的立面图,并标注尺寸;(见下图)

3.设门宽为W(1780),门总高为H(2480),亮窗高为H1(480),门高为H2(2000)。
4.选用山东华建46地弹门系列型材,
门框宽度44mm,厚度76mm,
门中框宽度44mm,厚度76mm,
门光企宽度80mm,厚度46mm,槽深75 mm,
门勾企宽度80.25mm,厚度46mm,槽深75mm,
门上方高度53.9mm,厚度44mm,
门下方高度81.8mm,厚度44mm,
门中横高度80.6mm,厚度44mm,
门扇与门框的间隙为5mm。
5、计算下料尺寸:
竖门框=H=2480 (2件)
门上框=门中框=W-门框宽度*2=1780-44*2=1692 (各1件)
门光企=门勾企= H2-离地间隙-门扇与门框的间隙=2000-10-5=1985 (各2件)
门扇宽度=(W-门框宽度*2-门扇与门框的间隙*2-门扇与门扇的间隙)/2 =(1780-44*2-5*2-5)/2=838.5
门扇上方=门扇下方=门中横=门扇宽度-门光企宽+门光企槽深-门勾企宽+门勾企槽深
= 838.5 -80 + 75 - 80.25 + 75 = 828.25 (各2件)
门扇玻璃压条:
横玻璃压条=门扇宽度-门光企宽度-门勾企宽度=838.5 -80- 80.25 =678.25 (4件)
竖玻璃压条=(门光企-门上方高度-门下方高度-门中横高度)/2 =(1985-53.9-81.8-80.6)/2=884.35 (4件)
玻璃尺寸:668*874
亮窗玻璃压条:
横玻璃压条= W-门框宽度*2=1780-44*2=1692 (4件)
竖玻璃压条= H1-门框宽度*2=480-44*2=392 (4件)
玻璃尺寸:782*382
例题13 计算铝合金平开门LPM70*1525的下料尺寸
解:1. 根据平开门的洞口尺寸1500*2500,确定平开门的成品尺寸为1480*2480;
2、根据平开门成品尺寸,按比例绘制立面图,并标注尺寸;(见下图)

3.设门宽为W(1480),门总高为H(2480),亮窗高为H1(480),门高为H2(2000)。
4.选用山东华建70A平开门系列型材,
门框宽度29mm,耳宽12.9mm,总宽41.9mm,
门中框宽度28mm,耳宽12.9mm,总宽53.8mm,
门下框高度30mm,
门光企宽度50mm,槽深44 mm,
门勾企宽度50mm,槽深44 mm,搭接边宽度12.5mm,总宽62.5mm,
门上下方高度75mm,玻璃槽深12 mm,
门中横高度100mm, 搭接量为8mm。
计算下料尺寸:
竖门框=H=2480
门上框=门下框=门中框=W-门框宽度*2=1480-29*2=1422
门光企=门勾企= H2-门下框高-门中框宽-门中框耳宽+搭接量*2 =2000-30-28-12.9+8*2=2000-54.9=1945.1
门扇宽度=1/2(W-门框总宽*2-两门扇间隙+搭接量*2)
=1/2(1480-41.9*2-4.5+8*2)=740-36.15=703.85
门上下方=门中横=门扇宽度-门光企宽+光企槽深-门勾企宽+勾企槽深 =703.85-50+44-50+44=715.85

