光影空间的灯光设计艺术
本案位于山西太原项目希望围绕品牌“留住此刻”,打造一家以故事性来记录当下生活的摄影空间。“光”是摄影和空间两个不同艺术领域中相通的元素,摄影就是光的艺术,而对于空间体验也同样重要。
光是组成摄影的重要部分,有光才有影。随着角度的改变,被摄体表面的质感描写,阴影的均衡都会直接影响整体的表现效果。
原建筑为一个层高8米的钢结构建筑体,设计从光的三原色——“蓝、红、绿”的概念出发,由这三种不能再分解的基本色彩可以组合成无数其他色彩,以这三种颜色作为不同区域空间的主题色,预示着空间未来更多的变化。
真正的空间体验都具有身体性和多重感知性。每个引人注目的空间和场所势必都有它独具特色的光,而光通常也是最能直接调节情绪的空间特性。
设计方案从“来自美术馆的一束光”为主题,在空间上让光为建筑的体量、空间和表面赋予性格和表现力,显示出材料的形状、重量、硬度、肌理、温度、光滑度、温度等方面,在拍摄的同时以光为主题的空间也能帮助灵感不断迸发。
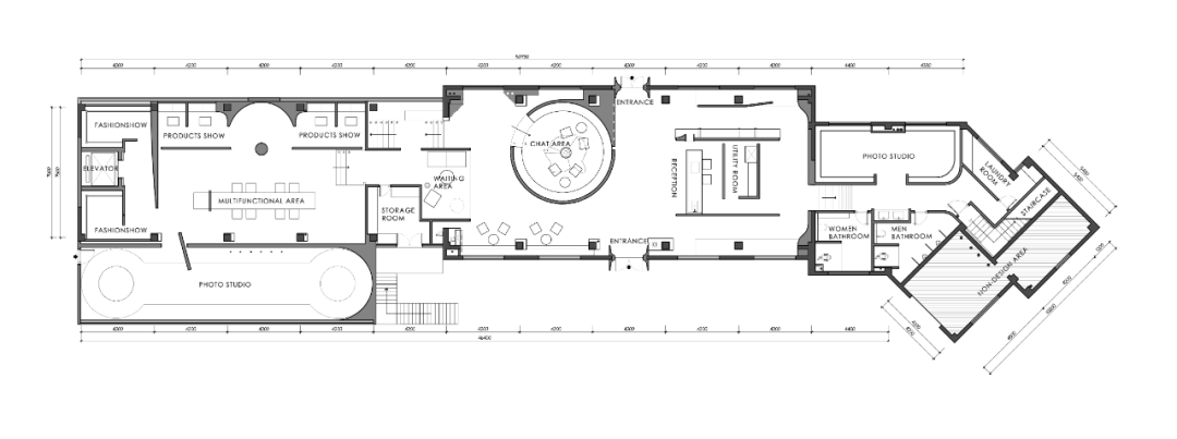
设计构思以展示作为所有空间的内核,从“光之画廊”搭建整个空间形态,通过建筑语言引入室内,形成高辨识度的视觉效果和空间记忆。设计上打破常规适用区域“一室一用”,使其满足“一室多用”,赋予空间多重属性,更大限度地促进空间与人的互动性,形成品牌在空间上的记忆。
通过前厅吧台对面圆形公共区,可以看到悬挑的空间盒子,彼此独立但又充满一定的私密感。顺着台阶往里走,立刻置身于一个层次更加复杂的空间之中,红色配合灯光将空间点亮。每个空间都设有开口,保证其功能的同时又保留体验的趣味。
设计中,不对光线进行均匀分布,增强场所感和私密感,营造出一种抚慰人心的拍摄体验。光透过玻璃照在墙壁上,仿佛放慢了速度,使太阳光和照明设施在弧形墙的表面和边缘之间顽皮地跳跃反射。在墙壁中设计的狭缝,是为了把光挤压成具有方向性的薄片,使它变成触不到的一层刀刃,从而切断空间中的黑暗。

